서울봉화초등학교
창의융합과학실 환경개선 공사
글라스톤 실험대, 인조대리석 싱크대,
칠판 보조장, 법랑 화이트보드 등 기자재 설치
서울 중랑구의 봉화초등학교 과학실 환경개선 공사를 완료했습니다.
기존 과학실과 준비실에 있던 노후된 가구들을 모두 철거하고
기자재 및 환경개선 공사에 대한 현대화 사업이 진행되었습니다.
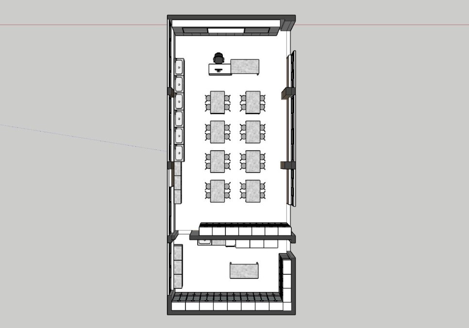
완성된 과학실 모습 보겠습니다.


교실 전면부에는 외관 인테리어로써 보기 좋고, 수납공간 부분에서도 활용성이 좋은 칠판 보조장이 들어갔습니다.
중앙에는 TV를 매립 설치할 수 있게끔 법랑 화이트보드가 미닫이형으로 제작되었습니다.


다양한 실험을 진행하기 적합한 글라스톤 상판 실험대가 학생, 교사용으로 들어갔습니다.
실험대 측면에 콘센트를 각각 부착하여 활용성을 높였고, 상판을 연하늘색 글라스톤,
측면을 밝은 우드로 선택하여 전체적으로 밝은 이미지를 보여줍니다.
잠시 3D 도면 보겠습니다.


가구가 들어가기 전 3D 도면을 제작하고 전체적인 이미지를 확인했습니다.


바닥 데코타일 공사와 함께 목공사 인테리어도 진행 되었는데요.
밝은 실험대 색상과 목공사 인테리어 부분이 교실을 전체적으로 조화롭게 보이도록 하는 거 같습니다.
목공사가 진행된 현장 모습입니다.


기존 과학실 모습입니다.




이렇게 서울봉화초등학교 과학실이 현대화 개선 공사를 완료했습니다.
궁금하신 사항 있으시면 언제든지 카라시스템으로 문의 주세요
문의 전화 02 2688 9048
'창의융합과학실' 카테고리의 다른 글
| 아이워시KC2 눈세척기, 2구 안구 세척기, 학교 과학실 눈세안기 설치 - 덕소초등학교 (0) | 2022.11.05 |
|---|---|
| 창의융합과학실 86인치 전자칠판, 실험기구진열장, 싱크대 등 리모델링 공사 - 문산수억중학교 (0) | 2022.11.05 |
| 창의융합 과학실 환경개선 , 현대화 사업, 글라스톤 실험대, 75인치TV, 인조대리석 싱크대 등 기자재 납품 및 리모델링 - 서울강서초등학교 (0) | 2022.11.04 |
| 86전자칠판, 라미스실험대, 법랑칠판, 인조대리석 싱크대, 과학실 기자재, 창의융합 과학실 현대화사업 - 서울원광초등학교 (0) | 2022.11.04 |
| 과학실 글라스톤 실험대, 강화유리 책상, 학생용 의자, 과학실 기자재 설치 - 부여장암초등학교 (0) | 2022.11.04 |